Casa 3

Casa 3

000.000 € Semifinisat
+TVA deductibil

Preț: în curând

Interior
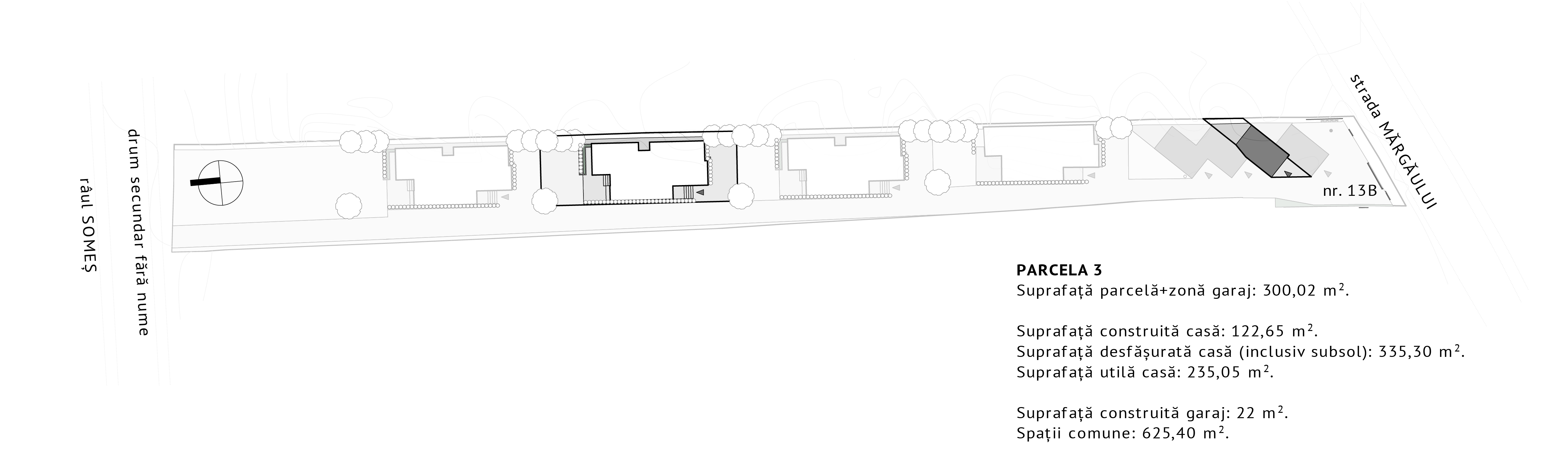
Suprafață utilă: 235.05 mp
Zona de zi: 55.6 mp
Depozitare: 24.3 mp
Balcoane & terase: 26.65 mp

Amprenta clădirii: 122.65 mp
Suprafața totală: 335.3 mp

Exterior
Teren – 294.42 mp din care:
– 122.65 mp amprenta casei
– 33.7 mp parcare cu încărcare electrică și spații pavate
– 138.07 mp spații verzi și jardiniere

Garaj – 22 mp la distanță de 47 ml de casa 2

Teren comun – 625.4 mp din care:
– 590.4 mp drum de acces
– 35 mp zonă menajeră

Imaginile sunt cu titlu de prezentare.

Planuri arhitecturale

Case By The River Cluj-Napoca
Case By The River Cluj-Napoca
Case By The River Cluj-Napoca

Plan situație

Plan situatie parcela 3

Randări exterioare